Vente Appartement Livry-Gargan 93190
315 000 € * - 67.31 m2 - 2 Chambres - Réf. SVAP10001905

Détails du bien

  • 67.31 m²

  • 3 Pièce(s)

  • 2 Chambre(s)

  • 1 Salle(s) d'eau

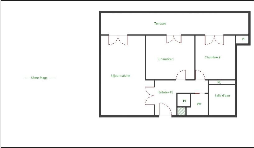
SIA Immobilier vous propose en exclusivité : Un bel appartement F3 de 67m2 avec une grande terrasse de 28m2 (vue dégagée, sans vis-à-vis). Situé au dernier étage d'une résidence de standing situé au 23 Boulevard de la République.
Agencement : Entrée avec dressing, grand salon avec cuisine ouverte équipée (accès terrasse), 2 chambres avec dressing (accès terrasse), salle d'eau moderne (douche à l'italienne), WC séparé.
Atouts : Parquet point de Hongrie, climatisation, volets électriques. Cave et parking inclus. Possibilité d'un 2ème parking en sus.
Points forts : Résidence sécurisée et bien entretenue (aucun travaux à prévoir). Emplacement idéal : transports en commun à proximité.
Opportunité rare : Libre de toute occupation, aucun travaux à prévoir (appartement et copropriété). Aucune procédure en cours.
Contactez-nous vite pour une visite !
Informations complémentaires : Honoraires : Charge Vendeur - Net Vendeur : 310 000EUR - Copropriété de 38 lots à usage d'habitation, de commerce et de bureaux- Charges Générales de copropriété : 364 EUR / trimestrielles - Taxe foncière : 1913 EUR - Millième de copropriété (339/10 000) - Classement du logement en matière de performance énergétique (DPE) : C 52 Kwh/m2/an d'énergie finale- Montant estimé des dépenses annuelles d'énergie pour un usage standard entre 710 et 1 1010 EUR, indexés sur les années 2021 à 2023 - Les informations sur les risques auxquels ce bien est exposé sont disponibles sur le site Géorisques : www.georisques.gouv.fr
315 000 € *
Honoraires d'agence à la charge du vendeur
  • Référence : SVAP10001905
  • Ville : Livry-Gargan
  • Transaction : Vente
  • Type de bien : Appartement
  • Prix de vente : 315 000 €
  • Syndicat en procédure : Non
  • Copropriété - nombres de lots : 38
  • Charges annuelles : NC
  • Surface : 67,31 m2
  • Année de construction : 2011
  • Etage du bien : 5
  • Nb d'étages : 5
  • Ascenseur : Oui
  • Surface séjour : 31 m2
  • Nb de pièces : 3
  • Nb de chambres : 2
  • Nb de salle d'eau : 1
  • Cuisine : Américaine équipée
  • Parking : 1
Performance énergétique (en KWh/m2/an)
D.P.E.
Performance climatique (en Kg éq CO2/m2/an)
Ges
Montant estimé des dépenses annuelles d’énergie pour un usage standard : année de référence 1 - de 710€ à 1010€
%
%

Vos mensualités

*apport calculé sur une base de 20%

Informations non contractuelles, fournies à titre indicatif
93 - Seine Saint Denis
Montant En % du prix du bien
Emoluments notaire %
Copies & formalités notaire 800 %
Total notaire %
Droits de mutation 5.80%
Publicité foncière 0.10%
Debours 400 %
TVA (sur part notaire) %
Total %
Informations non contractuelles, fournies à titre indicatif
  • Référence : SVAP10001905
  • Ville : Livry-Gargan
  • Transaction : Vente
  • Type de bien : Appartement
  • Prix de vente : 315 000 €
  • Syndicat en procédure : Non
  • Copropriété - nombres de lots : 38
  • Charges annuelles : NC
  • Surface : 67,31 m2
  • Année de construction : 2011
  • Etage du bien : 5
  • Nb d'étages : 5
  • Ascenseur : Oui
  • Surface séjour : 31 m2
  • Nb de pièces : 3
  • Nb de chambres : 2
  • Nb de salle d'eau : 1
  • Cuisine : Américaine équipée
  • Parking : 1
Partager ce bien

Par téléphone

Au 01 43 43 91 61 (Du lundi au vendredi de 9h30 à 19h30 - Le samedi sur rendez-vous )

Par email

En remplissant le formulaire ci-dessous